Состоит из:
7.3469.9.800.0 Debba Round чаша подвесного унитаза с технологией RIMLESS
7.801B.2.200.B Debba Round сиденье Supralit SC быстросъёмное
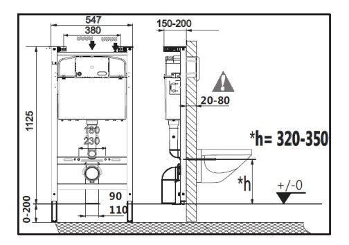
89011001R Инсталляционная система Active
Описание и технические характеристики
Унитаз подвесной безободковый, в комплекте с сиденьем микролифт, система антивсплеск, две кнопки слива воды (режим эконом).
Материал Фаянс
Цвет Белый
Тип установки Подвесной
Выпуск в канализацию Горизонтальный
Крышка Дюропласт
Длина 54 см
Ширина 35.5 см
Высота 109 см
Страна Испания
Производитель Roca




