Технические характеристики и описание
Вид зеркала зеркальное полотно
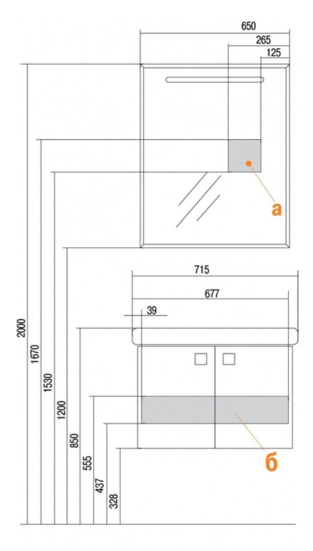
Ширина 65 см
Высота 80 см
Глубина 3,2 см
Материал корпуса ЛДСП
Тип светильника встроенный
Цвет зеркало
Форма зеркала прямоугольная
Страна Россия
Производитель Акватон
Гарантия 3 года




